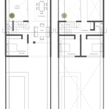
Casa P. Ayala A
Siguiendo el mismo concepto de su proyecto homólogo, esta segunda propuesta lo perfecciona y se adapta a las características particulares del nuevo terreno. Se han modificado los acabados y redistribuido algunos espacios en planta, lo que permitió una mayor conexión entre el interior y el exterior, no solo a través del patio central, sino también mediante una terraza que se abre hacia la alberca.










