Casa Tierra Larga
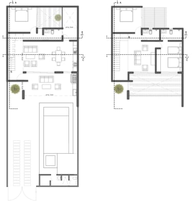
Casa Tierra Larga es un proyecto particular. Ubicado en la colonia con el mismo nombre, el diseño busca generar la interacción y convivencia familiar al crear áreas sociales abiertas y fáciles de recorrer. El muro de mármol travertino en las escaleras permite que ambas plantas conversen a través de las sombras del sol. Así mismo, sus terrazas conectan el interior con el exterior, dándole interes a la alberca en uso y contemplación.






















