Dptos. Hdz.
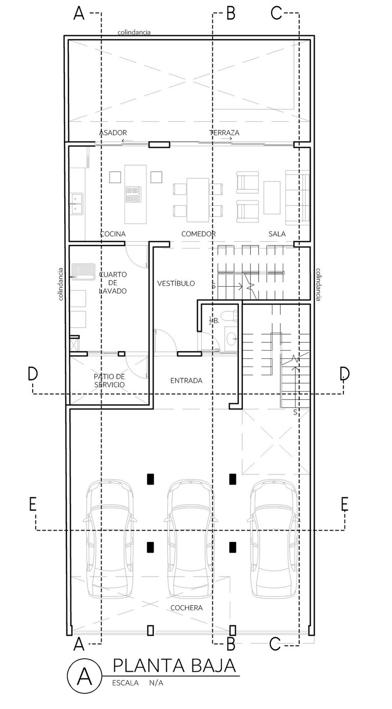
Este conjunto habitacional de estilo contemporáneo se desplanta sobre un terreno de 200 m² aprox. El proyecto consta de tres departamentos: en planta baja se ubica el principal en formato dúplex, mientras que en los niveles uno y dos se distribuyen dos departamentos sencillos. La arquitectura se define por una volumetría sólida y vertical, con juegos de llenos y vacíos que dan dinamismo a la fachada. Las proporciones rectilíneas y geometría aportan una imagen moderna y elegante.
















